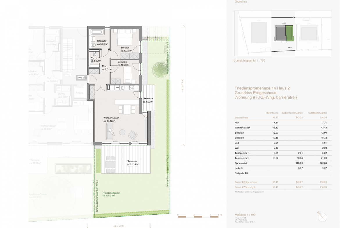
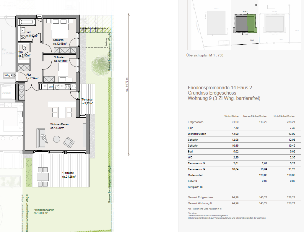
Haus 2 Wohnung 9 im Erdgeschoss
- 1.093.000,00€
Beschreibung
3 Zimmer Wohnung im Erdgeschoss mit Terrasse und Garten
Bezugsfertig diesen Sommer 2026
Besonderes Augenmerk wird auch hier auf die Innenausstattung gelegt.
Der helle, offene und großzügige Wohn-/Essbereich bietet viel Gestaltungsspielraum.
Naturholzparkettböden mit energieeffizienter Fußbodenheizung sowie bodentiefe Fensterelemente mit Dreifach-Wärmeschutzverglasung, elektrische Rollläden und wärmegedämmten Rollladenkästen sorgen zugleich für einen hohen Wohnkomfort und eine sparsame Energieeffizienz.
Zeitgemäße Architektur, lichtdurchflutete Räume und eine nachhaltige Bauweise garantieren Wohnqualität auf hohem Niveau.
Addresse
-
Addresse: Friedenspromenade 14
-
Stadt: München
-
Bundesland: Bayern
-
Postleitzahl: 81827
-
Stadtteil: Trudering
-
Land: Deutschland
Details
Aktualisiert am März 6, 2026 beim 2:59 p.m.-
Objekt-ID MRB 113
-
Preis 1.093.000,00€
-
Objektgröße m² 94,99
-
Schlafzimmer 2
-
Zimmer 3
-
Badezimmer 1
-
Baujahr 2026
-
Objektart Neubau, Wohnung
-
Objekt Status Provisionsfrei, Zu Verkaufen



